Small offices to large suites
Compass Park has been excellently maintained and cared for by a single owner for over 20 years. Conveniently located near the Grand Junction airport and Interstate-70, this professional office building is within walking distance to numerous new hotels, shops and restaurants and only a short driving distance to so much more.
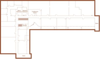
This two-story building is adorned with an upgraded elevator and ample reserved parking for your business and visitors. While most first floor tenants have private entrances, all tenants have access to the large common conference room on the second floor. Offices spaces vary in size and configuration from small offices to large multi-office suites for a growing company.
Whether you need a small suite with a view or a large bullpen and room to expand, the management team of Compass Park is committed to finding the right space to fit your needs. We take care of the property inside and out and are continually upgrading the building to provide a better tenant experience.

Reserved parking and overflow lot

Large, private entry suites on the first floor

Small multi-office spaces


Large A/V ready conference room
available to all tenants.

Electronic locks, timed entry,
individual / group codes

• 1023 sqft
• $1100 / month
• 2nd floor north facing windows
• 4 offices
• In-suite IT room/storage
• 4 reserved parking spaces






Contact us to schedule a viewing of the available units!
970-812-4212